Home
Mixed-Use / Multi-Family
Houses
Commercial
Civic / Institutional
Teaching
About Me
More
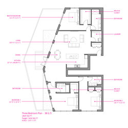
Marina North, South San Francisco, Steinberg 2017
Senior Project Designer Concept thru SD